您好,欢迎进入格鲁夫机械设备制造有限公司官网!
减速机|丝杆升降机|减速电机|行业专用减速机|减速机配件|减速机厂|丝杆升降机厂|转向器厂

联系我们

邮箱:china@gelufu.com
电话:0312-6784766
在线咨询

摆线针轮减速机

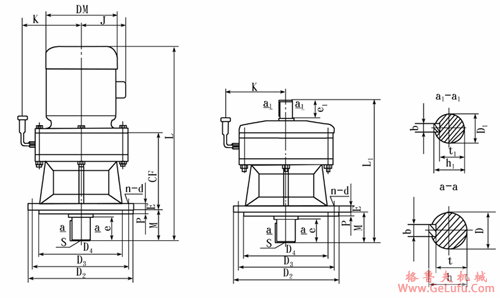
BL0、BLD0、BL1、BLD1、BL2、BLD2、BL3、BLD3、BL4、BLD4、BL5、BLD5、BL6、BLD6、BL7、BLD7、BL8、BLD8、BL9、BLD9化工部标准行星摆线针轮减速机外形及安装尺寸

发布日期:2023-12-28 18:39 浏览次数:

BL0、BLD0、BL1、BLD1、BL2、BLD2、BL3、BLD3、BL4、BLD4、BL5、BLD5、BL6、BLD6、BL7、BLD7、BL8、BLD8、BL9、BLD9化工部标准行星摆线针轮减速机外形及安装尺寸(图1) mail:china@gelufu.com

BL、BLD型化工部标准行星摆线针轮减速机外形及安装尺寸

格鲁夫配件

手机:13331225020

BL0、BLD0、BL1、BLD1、BL2、BLD2、BL3、BLD3、BL4、BLD4、BL5、BLD5、BL6、BLD6、BL7、BLD7、BL8、BLD8、BL9、BLD9化工部标准行星摆线针轮减速机外形及安装尺寸(图2)

格鲁夫配件

系列
机座号
外形尺寸
安装尺寸
输出轴尺寸
输入轴尺寸
D2
L1
CF
D3
D4
P
E
M
n-d
D
e
b
h
s
t
D1
e1
b1
h1
t1
化工部
标准
B0
190
214
165
160
140
3
10
39
4-11
30
35
8
33
M8
26
15
22
5
17
12
B1
230
263
194
200
170
4
12
61
6-11
35
46
10
38
M10
30
18
35
6
20.5
14.5
B2
260
320
246
230
200
4
15
70
6-11
45
60
14
48.5
M10
39.5
22
40
6
24.5
18.5
B3
340
390
294
310
270
5
20
80
6-13
55
74
16
59
M12
49
30
55
8
33
26
B4
400
465
356
360
320
5
22
101
8-15
70
92
20
74.5
M12
62.5
35
62
10
38
30
B5
490
544
431
450
400
5
30
120
12-18
90
113
25
95
M16
81
45
70
14
48.5
39..5
B6
580
668
528
520
460
8
35
139
12-22
100
130
28
106
M20
90
50
80
14
53.5
44.5
B7
650
791
594
590
520
10
40
182
12-22
110
142
28
116
M24
100
55
90
16
59
49
B8
880
1065
814
800
680
10
50
210
12-38
130
202
32
137
M30
119
70
120
20
74.5
62.5
B9
1160
1462
1151
1020
900
10
60
370
12-39
180
330
45
190
M42
165
90
150
25
95
81
手机:13331225020

Copyright © 2023-2025 格鲁夫 版权所有 备案号:冀ICP备19023093号-2

电子营业执照图标 电子营业执照
选择语言
Hello,欢迎来咨询~