您好,欢迎进入格鲁夫机械设备制造有限公司官网!
减速机|丝杆升降机|减速电机|行业专用减速机|减速机配件|减速机厂|丝杆升降机厂|转向器厂

联系我们

邮箱:china@gelufu.com
电话:0312-6784766
在线咨询

齿轮减速机

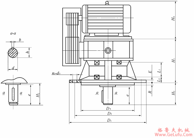
ZLD-1、ZLD-2、ZLD-3、ZLD-4、ZLD-5、ZLD-6、ZLD-7、ZLD-8、ZLD-9、ZLD-10、ZLD-11、系列单级立式螺旋锥齿轮减速机主要参数及尺寸

发布日期:2023-12-28 18:48 浏览次数:

ZLD-1、ZLD-2、ZLD-3、ZLD-4、ZLD-5、ZLD-6、ZLD-7、ZLD-8、ZLD-9、ZLD-10、ZLD-11、系列单级立式螺旋锥齿轮减速机主要参数及尺寸(图1) Mobile:13331225020

ZLD系列单级立式螺旋锥齿轮减速机主要参数及尺寸

QQ:47447450

ZLD-1、ZLD-2、ZLD-3、ZLD-4、ZLD-5、ZLD-6、ZLD-7、ZLD-8、ZLD-9、ZLD-10、ZLD-11、系列单级立式螺旋锥齿轮减速机主要参数及尺寸(图2) 手机:13331225020

ZLD系列螺旋锥齿轮减速机主要尺寸
机型号
参数
输出轴联接尺寸
外型安装尺寸
d
(h6)
b
h
夹壳型
通用型
D1
D2
D3
L1
L2
H1
E
R
n-d0
重量
(kg)
e
H2
e
H2
标准
加高
标准
加高
ZLD-1
18
6
20.5
25
30
160
134
100
100
-
40
300
-
10
3
4-9
50
ZLD-2
25
8
28
78
85
34
42
180
160
130
100
-
40
300
-
12
3
6-9
60
ZLD-3
35
10
38
90
95
45
50
230
200
170
129
-
51
450
-
15
4
6-11
130
ZLD-4
45
14
48.5
100
115
63
79
260
230
200
125
-
55
450
-
15
4
6-11
138
ZLD-5
55
16
59
100
115
79
91
340
310
270
143
-
78
580
-
20
4
6-11
170
ZLD-6
65
18
69
130
144
80
92
400
360
316
148
205
81
580
637
26
5
8-15
255
ZLD-7
80
22
85
150
165
98
111
430
390
345
155
260
83
600
705
30
5
8-18
265
ZLD-8
90
25
95
180
186
110
111
490
450
400
194
294
87
660
760
30
5
12-18
277
ZLD-9
100
28
106
180
186
129
171
580
520
455
218
338
87
800
920
35
8
12-22
300
ZLD-10
110
28
116
200
215
140
173
650
590
520
321
471
130
940
1090
40
10
12-22
556
ZLD-11
130
32
137
184
210
880
800
680
321
471
130
940
1090
40
10
12-35
580
注:1、ZLD―1~11与摆线针轮减速机X1―11的联接尺寸相同。
2、表中所列减速机重量不含电机重量。

Copyright © 2023-2025 格鲁夫 版权所有 备案号:冀ICP备19023093号-2

电子营业执照图标 电子营业执照
选择语言
Hello,欢迎来咨询~