电话:0312-6784766

|
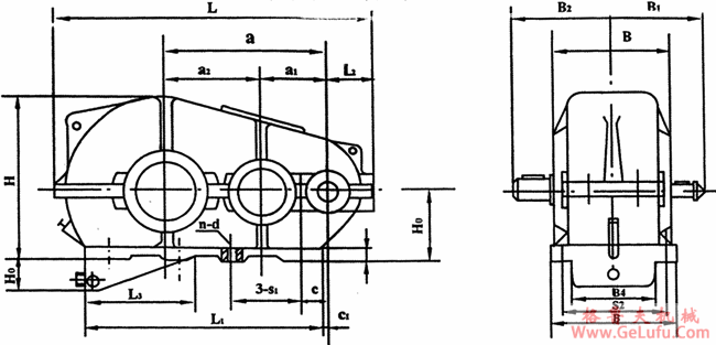
型号 |
中心距 |
中心高
H0 |
最大外形尺寸 |
轴端尺寸 |
L1 |
L2 |
L3 |
B4 |
H1 |
g |
安装尺寸 |
最大
质量
kg | ||||||||||
|
a |
a1 |
a2 |
L |
B |
H |
高速轴
B1 |
低速轴
B2 |
C |
C1 |
孔距 |
孔径
d |
孔数
n | ||||||||||
|
S1 |
S2 | |||||||||||||||||||||
|
JZQ250 |
250 |
100 |
150 |
160-00.5 |
540 |
230 |
313 |
200 |
218 |
345 |
101 |
- |
- |
- |
20 |
60 |
28 |
235 |
190 |
17 |
4 |
100 |
|
JZQ350 |
350 |
150 |
200 |
200-00.5 |
730 |
290 |
440 |
260 |
248 |
470 |
132 |
- |
- |
- |
25 |
100 |
40 |
310 |
250 |
17 |
4 |
200 |
|
JZQ400 |
400 |
150 |
250 |
250-00.5 |
826 |
310 |
490 |
270 |
303 |
490 |
133 |
- |
- |
- |
25 |
110 |
80 |
370 |
370 |
17 |
4 |
250 |
|
JZQ500 |
500 |
200 |
300 |
300-00.5 |
986 |
350 |
587 |
330 |
323 |
645 |
148 |
- |
- |
- |
25 |
130 |
80 |
240 |
310 |
17 |
6 |
390 |
|
JZQ650 |
650 |
250 |
400 |
320-01.5 |
1278 |
470 |
695 |
430 |
428 |
830 |
183 |
495 |
324 |
100 |
30 |
160 |
85 |
215 |
410 |
25 |
8 |
880 |
|
JZQ750 |
750 |
300 |
450 |
320-01.5 |
1448 |
510 |
740 |
450 |
445 |
1020 |
206 |
620 |
364 |
135 |
35 |
155 |
55 |
275 |
450 |
25 |
8 |
1100 |
|
JZQ850 |
850 |
350 |
500 |
400-01.5 |
1632 |
580 |
875 |
510 |
523 |
1100 |
236 |
610 |
418 |
105 |
38 |
155 |
75 |
300 |
520 |
32 |
8 |
1500 |
|
JZQ1000 |
1000 |
400 |
600 |
400-01.5 |
1896 |
660 |
965 |
550 |
603 |
1350 |
257 |
870 |
478 |
200 |
40 |
200 |
100 |
350 |
590 |
32 |
8 |
2230 |