QQ:47447450
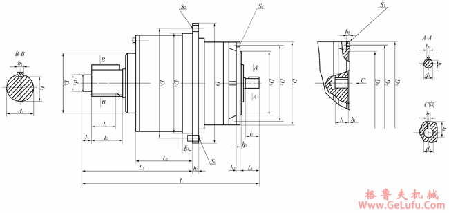
2K-H型悬浮均载行星齿轮减速机外形及安装尺寸
mail:china@gelufu.com
格鲁夫丝杆升降机
|
型号 |
L |
D |
dB1B
(k6) |
dB1B
(H7) |
dB2B |
dB3B |
lB1B |
lB2B |
lB3B |
lB4B |
bB1B |
tB1B |
bB2B |
tB2B |
|
2K-H27 |
425 |
320 |
|
38 |
50k6 |
0 |
80 |
85 |
|
|
|
|
14 |
44.5 |
|
2K-H27A |
490 |
300 |
|
42 |
EXT20z×3m×30p |
0 |
110 |
75 |
|
50 |
|
|
|
|
|
2K-H120 |
569 |
350 |
|
38 |
90k6 |
0 |
80 |
110 |
|
|
|
|
25 |
81 |
|
2K-H130 |
836 |
500 |
50 |
|
120k6 |
0 |
80 |
150 |
|
|
14 |
44.5 |
32 |
109 |
|
2K-H130A | ||||||||||||||
|
2K-H148 |
705 |
440 |
|
42 |
100k6 |
0 |
110 |
160 |
|
|
|
|
28 |
90 |
|
2K-H278 |
1075 |
720 |
50 |
|
160k6 |
0 |
85 |
210 |
|
|
14 |
44.5 |
40 |
147 |
|
2K-H278A |
1015 |
55 |
170m6 |
0 |
210 |
|
|
16 |
49 |
40 |
157 | |||
|
2K-H278B |
1100 |
55 |
EXT38z×4m×20p |
100f9 |
220 |
60 |
160 |
16 |
49 |
|
| |||
|
2K-H300 |
841 |
500 |
45 |
|
140k6 |
0 |
70 |
160 |
|
|
14 |
39.5 |
36 |
128 |
|
2K-H300B |
976 |
|
EXT33z×4m×20p |
80f9 |
220 |
60 |
160 |
|
| |||||
|
2K-H300a |
673 |
380 |
|
38 |
100k6 |
0 |
80 |
125 |
|
|
|
|
28 |
90 |
|
2K-H226 |
950 |
550 |
45 |
|
EXT29z×5m×30p |
100f8 |
70 |
160 |
60 |
130 |
14 |
39.5 |
|
|
|
2K-H343 |
1321 |
880 |
55 |
|
EXT42z×4m×20p |
120f8 |
85 |
220 |
60 |
160 |
16 |
49 |
|
|
|
bB3B |
tB3B |
SB1B |
SB2B |
SB3B
(H7) |
hB1B |
hB2B |
hB3B |
hB4B |
LB1B |
LB2B |
LB3B |
DB1B |
DB2B |
DB3B |
DB4B
(h7) |
D5 |
D6
(f9) |
|
10 |
41.3 |
4×φ14 |
8×φ14 |
|
6 |
16 |
25 |
30 |
|
130 |
279 |
300 |
265 |
230H7 |
265 |
295 |
130 |
|
12 |
45.3 |
4×φ16 |
|
|
6 |
16 |
|
|
|
|
|
350 |
300 |
250H7 |
|
|
|
|
10 |
41.3 |
4×φ14 |
8×φ17 |
2×φ12 |
6 |
15 |
20 |
40 |
|
159 |
354 |
300 |
265 |
230H7 |
270 |
315 |
210 |
|
|
|
8×φ19 |
8×φ21 |
4×φ16 |
6 |
18 |
30 |
50 |
120 |
230 |
480 |
350 |
300 |
250h7 |
380 |
460 |
280 |
|
500 |
460 |
390H7 | |||||||||||||||
|
12 |
45.3 |
4×φ19 |
8×φ18 |
4×φ12 |
6 |
16 |
20 |
40 |
|
220 |
440 |
350 |
300 |
250H7 |
360 |
400 |
220 |
|
|
|
6×φ19 |
8×φ26 |
4×φ20 |
6 |
20 |
35 |
60 |
120 |
310 |
680 |
500 |
460 |
380h7 |
600 |
660 |
360 |
|
8×φ26 |
4×φ25 |
290 |
600 |
390h7 | |||||||||||||
|
12×φ26 |
2×φ20 |
290 |
685 |
380h7 | |||||||||||||
|
|
|
4×φ18 |
8×φ22 |
2×φ16 |
8 |
16 |
30 |
50 |
105 |
245 |
515 |
350 |
300 |
250h7 |
420 |
460 |
320 |
|
|
|
650 | |||||||||||||||
|
10 |
41.3 |
4×φ14 |
8×φ18 |
4×φ14 |
8 |
20 |
30 |
40 |
|
90 |
225 |
300 |
265 |
230h7 |
320 |
350 |
320 |
|
|
|
4×φ18 |
8×φ22 |
4×φ16 |
8 |
20 |
30 |
60 |
100 |
256 |
580 |
350 |
300 |
250h7 |
450 |
500 |
310 |
|
|
|
8×φ18 |
30×φ22 |
|
6 |
20 |
35 |
50 |
120 |
411 |
971 |
510 |
460 |
380h7 |
700 |
820 |
450 |