您好,欢迎进入格鲁夫机械设备制造有限公司官网!
减速机|丝杆升降机|减速电机|行业专用减速机|减速机配件|减速机厂|丝杆升降机厂|转向器厂

联系我们

邮箱:china@gelufu.com
电话:0312-6784766
在线咨询

蜗轮减速机

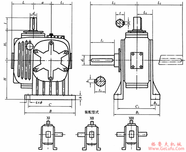
TPG80、TPG100、通用型减速机形式及外形尺寸(Ⅺ―XIII)

发布日期:2023-12-28 18:27 浏览次数:

TPG80、TPG100、通用型减速机形式及外形尺寸(Ⅺ―XIII)(图1) 手机:13331225020

TPG80、TPG100、通用型减速机形式及外形尺寸(Ⅺ―XIII)(图2)
TPG通用型减速器形式及外形尺寸 (mm)

型号
a
B
B1
C
C1
H1
H
B2
L
L1
L2
L3
l
l1
d
d1
t
t 1
b
b1
h
Ф
质量(kg)
TPG80
80
230
242
220
206
143
180
50
100
98
210
86
58
110
35
45
38
48.5
10
14
18
19
53
TPG100
100
270
284
220
240
172
210
58
106
123
235
100
82
110
40
55
43
59
12
16
20
19
85
fax:0312-6784733

Copyright © 2023-2025 格鲁夫 版权所有 备案号:冀ICP备19023093号-2

电子营业执照图标 电子营业执照
选择语言
Hello,欢迎来咨询~