Mobile:13331225020
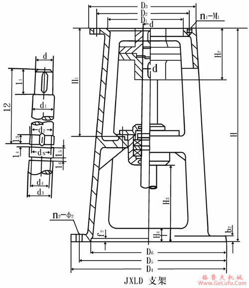
JXLD型摆线针轮减速机机架安装尺寸外形尺寸 格鲁夫配件
Mobile:13331225020
|
型号 |
减速
机搅
拌机
轴径d |
搅拌辆轴端尺寸 |
外形及联接尺寸 |
I型 |
II型 | ||||||||||||||||||||||||
|
d1 |
d2 |
d3
(k6) |
ds |
L1 |
L2 |
L3 |
L4 |
H1 |
H2 |
H4 |
D3 |
D2 |
D1
(Hg) |
N1―M1 |
D4 |
D5 |
D6
(Hg) |
f2 |
b2 |
n2 |
Φ2 |
H |
H3 |
Kg |
H |
H3 |
Kg | ||
|
JXLD3 |
35 k6 |
40 |
M45×1.5 |
45 |
42.8 |
60 |
215 |
10 |
3 |
300 |
140 |
40 |
230 |
200 |
170 |
6―M10 |
410 |
360 |
300 |
6 |
18 |
6 |
18 |
520 |
157 |
55 |
610 |
247 |
60 |
|
JXLD4 |
45k6 |
50 |
M55×2 |
55 |
52 |
75 |
235 |
14 |
4 |
350 |
183 |
45 |
260 |
230 |
200 |
6―M10 |
450 |
400 |
335 |
6 |
18 |
6 |
18 |
570 |
156 |
80 |
670 |
256 |
86 |
|
JXLD5 |
55m6 |
60 |
M65×2 |
65 |
62 |
75 |
300 |
14 |
4 |
400 |
169 |
50 |
340 |
310 |
270 |
6―M10 |
500 |
450 |
385 |
6 |
22 |
8 |
18 |
650 |
156 |
110 |
750 |
256 |
120 |
|
JXLD6 |
65m6 |
70 |
M75×2 |
75 |
72 |
90 |
277 |
16 |
4 |
400 |
205 |
50 |
400 |
360 |
316 |
8―M14 |
530 |
480 |
410 |
8 |
22 |
12 |
18 |
660 |
156 |
130 |
760 |
256 |
145 |
|
JXLD7 |
80m6 |
85 |
M90×2 |
90 |
87 |
105 |
316 |
20 |
4 |
450 |
231 |
60 |
430 |
390 |
345 |
8―M16 |
565 |
510 |
430 |
8 |
24 |
12 |
22 |
740 |
173 |
160 |
860 |
293 |
178 |
|
JXLD8 |
90m6 |
95 |
M100×2 |
100 |
97 |
125 |
320 |
20 |
4 |
500 |
295 |
60 |
490 |
450 |
400 |
12―Φ18 |
565 |
510 |
430 |
8 |
28 |
12 |
22 |
800 |
174 |
208 |
920 |
294 |
230 |
|
JXLD9 |
100m6 |
105 |
M110×2 |
110 |
107 |
125 |
308 |
20 |
4 |
500 |
305 |
65 |
580 |
520 |
455 |
12―Φ22 |
580 |
520 |
455 |
10 |
30 |
12 |
22 |
810 |
175 |
235 |
920 |
285 |
262 |
|
JXLD10 |
110m6 |
115 |
M120×2 |
120 |
117 |
155 |
267 |
24 |
4 |
500 |
376 |
70 |
650 |
590 |
520 |
12―Φ22 |
650 |
590 |
520 |
12 |
30 |
12 |
22 |
830 |
181 |
300 |
950 |
301 |
345 |
|
JXLD11 |
130m6 |
135 |
M140×2 |
140 |
137 |
155 |
265 |
28 |
4 |
500 |
376 |
70 |
880 |
800 |
680 |
12―Φ37 |
880 |
800 |
680 |
12 |
30 |
12 |
37 |
850 |
184 |
480 |
970 |
304 |
538 |
|
JXLD12 |
180m6 |
190 |
M200×3 |
200 |
196 |
285 |
377 |
40 |
4 |
780 |
665 |
65 |
1160 |
1020 |
900 |
8―Φ39 |
1160 |
1020 |
900 |
12 |
35 |
8 |
39 |
1200 |
235 |
|
1350 |
385 |
|