mail:china@gelufu.com

|
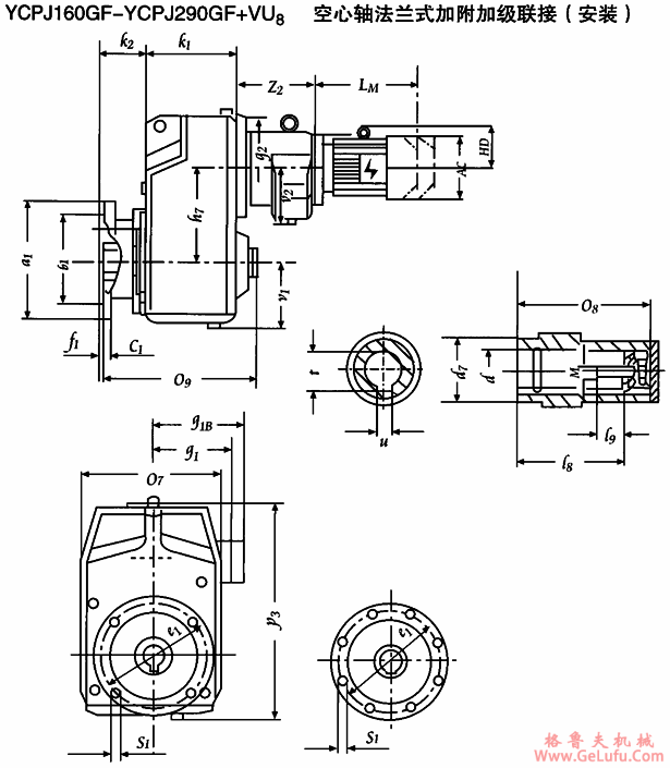
机座号 |
a1
b1 |
c1
e1 |
h1
f1 |
O7 |
O8
O9 |
P3 |
S1
V1 |
d
d7 |
l8
l9 |
k1
k2 |
V2
Z2 |
t
u |
M |
|
YCPJ160GF+VU2 |
250
180 |
15
215 |
160
4 |
212 |
203
205 |
351 |
(4孔)14
101 |
40H7
55 |
179
30 |
139
48 |
85
152 |
43.3
12 |
M16 |
|
YCPJ208GF+VU8 |
250
180 |
15
215 |
208
4 |
260 |
247
250 |
442 |
(4孔)14
124 |
55H7
70 |
220
31 |
162
61 |
118
176 |
53.8
14 |
M16 |
|
YCPJ255GF+VU8 |
350
250 |
20
300 |
255
5 |
315 |
267
270 |
540 |
(4孔)18
151 |
60H7
85 |
237
36 |
184
65 |
118
176 |
64.4
18 |
M20 |
|
YCPJ290GF+VU8 |
450
350 |
22
400 |
290
5 |
380 |
341.5
345 |
628 |
18
182 |
70H7
95 |
312
34 |
265
85 |
118
176 |
74.9
20 |
M20 |