格鲁夫
格鲁夫机械
|
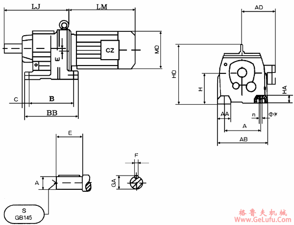
减速器
机座号 |
安装尺寸 |
外形尺寸 | ||||||||||||||||
|
A |
B |
C |
D |
E |
F |
H |
K |
n |
S |
AA |
AB |
BB |
GA |
HA |
HD |
e |
LJ | |
|
CZR17 |
110 |
110 |
18 |
20K6 |
40 |
6 |
75-0.5 |
9 |
4 |
M6 |
25 |
140 |
131 |
25.5 |
12 |
134 |
0 |
207 |
|
CZR27 |
110 |
130 |
25 |
25 |
50 |
8 |
90-0.5 |
9 |
4 |
M10 |
32 |
151 |
152 |
28 |
18 |
147 |
3.4 |
193 |
|
CZR37 |
110 |
130 |
25 |
25 |
50 |
8 |
90-0.5 |
9 |
4 |
M10 |
35 |
161 |
160 |
28 |
18 |
160 |
10.1 |
201 |
|
CZR47 |
135 |
165 |
30 |
30 |
60 |
8 |
115-0.5 |
13.5 |
4 |
M10 |
42 |
178 |
195 |
33 |
24 |
187 |
14 |
235 |
|
CZR57 |
135 |
165 |
30 |
35 |
70 |
10 |
115-0.5 |
13.5 |
4 |
M12 |
55 |
202 |
200 |
38 |
24 |
187 |
11.2 |
257 |
|
CZR67 |
150 |
195 |
30 |
35 |
70 |
10 |
130-0.5 |
14 |
4 |
M12 |
60 |
215 |
235 |
38 |
30 |
245 |
20.7 |
280 |
|
CZR77 |
170 |
205 |
35 |
40 |
80 |
12 |
140-0.5 |
17.5 |
4 |
M16 |
60 |
235 |
245 |
43 |
30 |
270 |
16 |
300 |
|
CZR87 |
215 |
260 |
40 |
50 |
100 |
14 |
180-0.5 |
17.5 |
4 |
M16 |
75 |
297 |
310 |
54 |
45 |
350 |
13 |
376 |
|
CZR97 |
250 |
310 |
40 |
60m6 |
120 |
18 |
225-0.5 |
22 |
4 |
M20 |
90 |
350 |
370 |
64 |
55 |
420 |
11 |
440 |
|
CZR107 |
290 |
370 |
45 |
70 |
140 |
20 |
250-0.5 |
26 |
4 |
M20 |
110 |
410 |
440 |
75 |
65 |
480 |
21 |
500 |
|
CZR137 |
340 |
410 |
50 |
90 |
170 |
25 |
315-1.0 |
33 |
4 |
M24 |
110 |
460 |
490 |
95 |
70 |
570 |
25 |
590 |
|
CZR147 |
380 |
500 |
50 |
110 |
210 |
28 |
355-1.0 |
39 |
4 |
M24 |
150 |
540 |
590 |
116 |
80 |
640 |
33.5 |
700 |
|
CZR167 |
500 |
580 |
60 |
120 |
210 |
32 |
425-1.0 |
39 |
4 |
M24 |
160 |
670 |
670 |
127 |
100 |
750 |
60 |
790 |