www.gelufu.com.cn
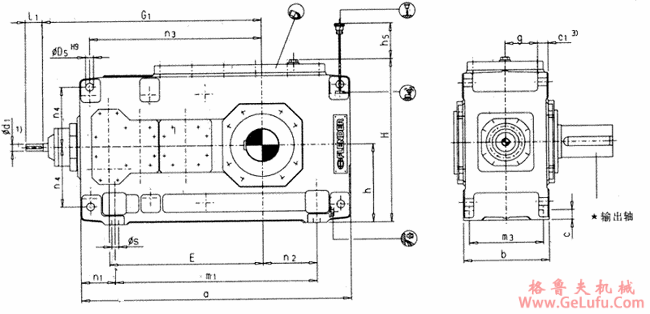
直交轴齿轮箱四级传动卧式安装(类型B4.H) 电话:0312-6784766
格鲁夫丝杆升降机
QQ:47447450
|
规格 |
尺寸mm | ||||||||
|
输入轴 | |||||||||
|
iN=80-180 |
iN=100-224 |
iN=200-315 |
iN=250-400 |
G1 | |||||
|
d11) |
l1 |
d11) |
l1 |
d11) |
l1 |
d11) |
l1 | ||
|
5 |
28 |
55 |
|
|
20 |
50 |
|
|
615 |
|
6 |
|
|
28 |
55 |
|
|
20 |
50 |
650 |
|
7 |
30 |
70 |
|
|
25 |
60 |
|
|
725 |
|
8 |
|
|
30 |
70 |
|
|
25 |
60 |
770 |
|
9 |
35 |
80 |
|
|
28 |
60 |
|
|
840 |
|
10 |
|
|
35 |
80 |
|
|
28 |
60 |
890 |
|
11 |
45 |
100 |
|
|
35 |
80 |
|
|
1010 |
|
12 |
|
|
45 |
100 |
|
|
35 |
80 |
1080 |
|
规格 |
尺寸mm | ||||||||||||||||
|
齿轮箱 | |||||||||||||||||
|
a |
b |
c |
c1 |
D5 |
E |
g |
h |
h5 |
H |
m1 |
m3 |
n1 |
n2 |
n3 |
n4 |
s | |
|
5 |
690 |
255 |
28 |
30±1 |
24 |
405 |
97.5 |
230 |
100 |
482 |
480 |
220 |
105 |
100 |
455 |
180 |
19 |
|
6 |
770 |
255 |
28 |
30±1 |
24 |
440 |
97.5 |
230 |
100 |
482 |
560 |
220 |
105 |
145 |
490 |
180 |
19 |
|
7 |
845 |
300 |
35 |
36±1 |
28 |
495 |
114 |
280 |
140 |
572 |
605 |
260 |
120 |
130 |
560 |
215 |
24 |
|
8 |
950 |
300 |
35 |
36±1 |
28 |
540 |
114 |
280 |
130 |
582 |
710 |
260 |
120 |
190 |
605 |
215 |
24 |
|
9 |
1000 |
370 |
40 |
45±1.5 |
36 |
580 |
140 |
320 |
135 |
662 |
710 |
320 |
145 |
155 |
660 |
245 |
28 |
|
10 |
1100 |
370 |
40 |
45±1.5 |
36 |
630 |
140 |
320 |
135 |
662 |
810 |
320 |
145 |
205 |
710 |
245 |
28 |
|
11 |
1200 |
430 |
50 |
54±1.5 |
40 |
705 |
161 |
380 |
170 |
782 |
870 |
370 |
165 |
180 |
805 |
300 |
35 |
|
12 |
1355 |
430 |
50 |
54±1.5 |
40 |
775 |
161 |
380 |
160 |
790 |
1025 |
370 |
165 |
265 |
875 |
300 |
35 |
|
规格 |
尺寸mm |
润滑油
(1) |
重量
(kg) | ||||||||
|
输出轴 | |||||||||||
|
B4SH |
B4HH |
B4DH | |||||||||
|
d21) |
G2 |
l2 |
D22) |
G4 |
D3 |
D4 |
G4 |
G5 | |||
|
5 |
100 |
165 |
210 |
95 |
165 |
100 |
100 |
165 |
240 |
16 |
335 |
|
6 |
110 |
165 |
210 |
105 |
165 |
110 |
110 |
165 |
240 |
18 |
385 |
|
7 |
120 |
195 |
210 |
115 |
195 |
120 |
120 |
195 |
280 |
30 |
555 |
|
8 |
130 |
195 |
250 |
125 |
195 |
130 |
130 |
195 |
285 |
33 |
655 |
|
9 |
140 |
235 |
250 |
135 |
235 |
140 |
145 |
235 |
330 |
48 |
890 |
|
10 |
160 |
235 |
300 |
150 |
235 |
150 |
155 |
235 |
350 |
50 |
1025 |
|
11 |
170 |
270 |
300 |
165 |
270 |
165 |
170 |
270 |
400 |
80 |
1485 |
|
12 |
180 |
270 |
300 |
180 |
270 |
180 |
185 |
270 |
405 |
90 |
1750 |