格鲁夫丝杆升降机

|
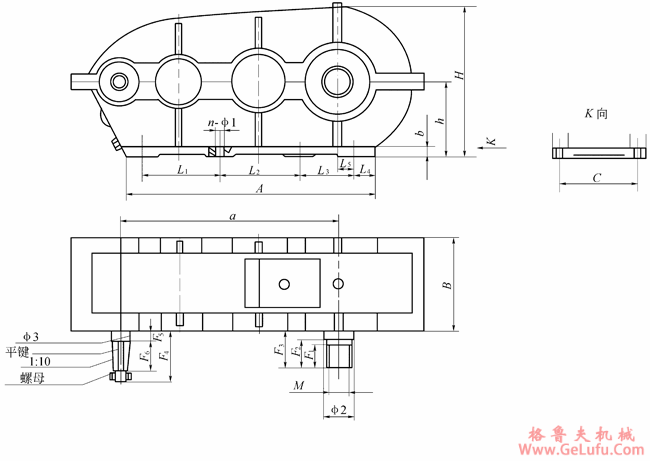
规格 |
a |
H |
h |
A |
B |
C |
L1 |
|
QSJ-4-500 |
500 |
355 |
182 |
590 |
215 |
183 |
190 |
|
QSJ-6-600 |
600 |
400 |
206 |
660 |
265 |
215 |
210 |
|
|
L1 |
L3 |
L4 |
L5 |
n-φ1 |
M |
φ2 |
|
QSJ-4-500 |
175 |
140 |
40 |
44 |
8-14 |
27Z-2.5 |
75 |
|
QSJ-6-600 |
220 |
150 |
35 |
40 |
8-18 |
29Z-2.5 |
85 |
|
|
φ3 |
L1 |
L2 |
L3 |
L4 |
L5 |
F6 |
|
QSJ-4-500 |
40 |
50 |
70 |
85 |
105 |
58 |
27 |
|
QSJ-6-600 |
50 |
60 |
80 |
105 |
145 |
80 |
35 |
|
|
平键 |
螺母 |
减速比 |
输出拉距 |
电机功率 |
b |
|
|
QSJ-4-500 |
12*58 |
M33*1.5 |
20.5/15.2 |
4000Nm |
15KW |
25 |
|
|
QSJ-6-600 |
14*80 |
M36*80 |
16.07 |
6500Nm |
24KW |
28 |
|
格鲁夫配件