Mobile:13331225020
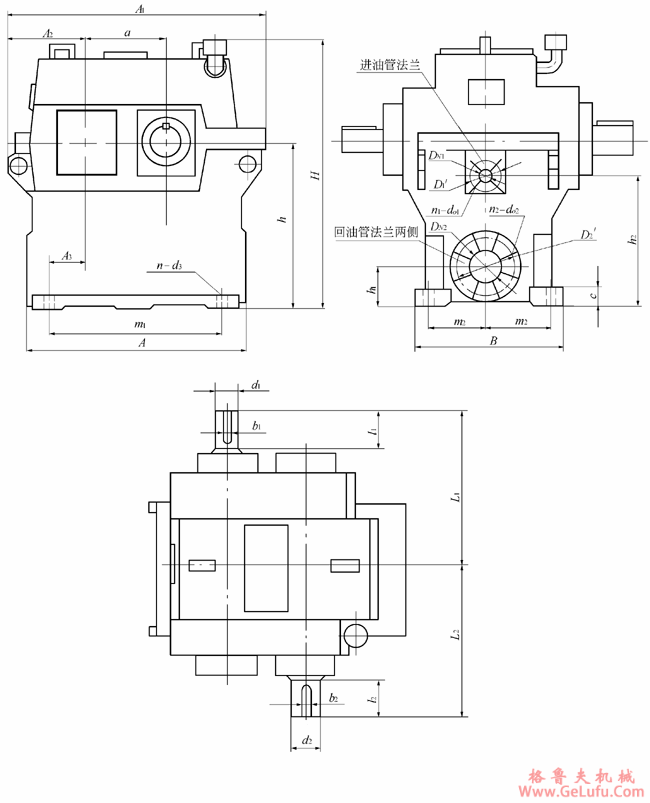
GS高速齿轮减速器和增速器的结构尺寸 gelufu.com
电话:0312-6784766
|
规格 |
a |
A |
A1 |
A2 |
A3 |
B |
H |
m1 |
m2 |
c |
h |
h1 |
h2 |
d2 |
l2 |
|
160 |
160 |
430 |
570 |
180 |
76 |
345 |
635 |
355 |
145 |
32 |
380 |
100 |
290 |
60 |
105 |
|
200 |
200 |
535 |
675 |
200 |
95 |
380 |
675 |
455 |
160 |
38 |
380 |
100 |
290 |
70 |
105 |
|
224 |
224 |
600 |
735 |
210 |
108 |
420 |
815 |
520 |
180 |
38 |
510 |
120 |
410 |
85 |
130 |
|
250 |
250 |
670 |
830 |
240 |
114 |
480 |
840 |
570 |
200 |
38 |
510 |
120 |
410 |
95 |
130 |
|
280 |
280 |
740 |
895 |
255 |
127 |
510 |
865 |
635 |
215 |
38 |
510 |
135 |
410 |
110 |
165 |
|
315 |
315 |
815 |
970 |
265 |
140 |
560 |
970 |
710 |
240 |
38 |
585 |
135 |
470 |
110 |
165 |
|
355 |
355 |
900 |
1075 |
300 |
165 |
650 |
1040 |
800 |
280 |
45 |
585 |
150 |
470 |
130 |
200 |
|
400 |
400 |
1000 |
1180 |
320 |
184 |
685 |
1070 |
900 |
300 |
45 |
635 |
150 |
500 |
150 |
200 |
|
规格 |
b2 |
L2 |
进油管法兰 |
回油管法兰 |
地脚螺栓孔 |
重量
/kg | ||||||
|
DN1 |
D1 |
D1′ |
n1 ―d01 |
DN2 |
D2 |
D2′ |
n2―d02 |
n―d3 | ||||
|
160 |
18 |
370 |
25 |
100 |
75 |
4―11 |
80 |
190 |
150 |
4―18 |
4―24 |
300 |
|
200 |
20 |
410 |
25 |
100 |
75 |
4―11 |
80 |
190 |
150 |
4―18 |
4―26 |
500 |
|
224 |
22 |
455 |
32 |
120 |
90 |
4―14 |
100 |
210 |
170 |
4―18 |
4―32 |
600 |
|
250 |
25 |
480 |
32 |
120 |
90 |
4―14 |
100 |
210 |
170 |
4―18 |
4―35 |
900 |
|
280 |
28 |
540 |
40 |
130 |
100 |
4―14 |
125 |
240 |
200 |
8―18 |
4―42 |
1100 |
|
315 |
28 |
550 |
40 |
130 |
100 |
4―14 |
125 |
240 |
200 |
8―18 |
4―42 |
1300 |
|
355 |
32 |
630 |
65 |
160 |
130 |
4―14 |
150 |
265 |
225 |
8―18 |
4―42 |
1700 |
|
400 |
36 |
680 |
65 |
160 |
130 |
4―14 |
150 |
265 |
225 |
8―18 |
4―42 |
2300 |
|
规格 |
i |
d1 |
l1 |
L1 |
b1 |
|
160 |
≥1.00~3.30
>3.30~3.70
>3.70~4.45
>4.45~5.30
>5.30~6.15
>6.15~7.00 |
60
50
45
40
32
25 |
105
82
82
82
58
42 |
370
352
352
352
328
307 |
18
14
14
12
10
8 |
|
200 |
≥1.00~3.55
>3.55~4.55
>4.55~5.20
>5.20~5.95
>5.95~6.82
>6.82~7.50 |
70
60
50
45
40
32 |
105
105
82
82
82
58 |
410
410
387
382
382
363 |
20
18
14
14
12
10 |
|
224 |
≥1.00~3.50
>3.50~4.20
>4.20~5.40
>5.40~6.15
>6.15~6.85
>6.85~8.00 |
85
70
60
50
45
40 |
130
105
105
82
82
82 |
450
430
430
407
407
407 |
22
20
18
14
14
12 |
|
250 |
≥1.00~3.50
>3.50~4.80
>4.80~6.10
>6.10~6.95
>6.95~7.85
>7.85~8.00 |
95
70
60
50
45
40 |
130
105
105
82
82
82 |
480
455
455
432
432
432 |
25
20
18
14
14
12 |
|
280 |
≥1.00~3.43
>3.43~4.00
>4.00~5.55
>5.55~6.75
>6.75~7.80
>7.80~8.00 |
110
95
70
60
50
45 |
165
130
105
105
82
82 |
540
505
480
480
457
452 |
28
25
20
18
14
14 |
|
规格 |
i |
d1 |
l1 |
L1 |
b1 |
|
315 |
≥1.00~3.10
>3.10~4.50
>4.50~5.45
>5.45~6.40
>6.40~7.75
>7.75~8.00 |
110
95
85
70
60
50 |
165
130
130
105
105
82 |
550
520
520
490
490
472 |
28
25
22
20
18
14 |
|
355 |
≥1.00~3.65
>3.65~4.45
>4.45~5.05
>5.05~5.90
>5.90~7.65
>7.65~8.00 |
130
110
95
85
70
60 |
200
165
130
130
105
105 |
630
590
555
555
530
530 |
32
28
25
22
20
18 |
|
400 |
≥1.00~3.38
>3.38~4.20
>4.20~5.15
>5.15~6.20
>6.20~8.00 |
140
130
110
95
70 |
200
200
165
130
105 |
675
675
635
600
575 |
36
32
28
25
20 |